오늘은 알씨 캐드 뷰어 다운로드 방법에 대해서 알아보도록 하겠습니다. 알씨 캐드뷰어는 이미지 뷰어 프로그램입니다. 다양한 사진을 분할해서 보실 수도 있고 편집, 포맷 변환 등 이미지와 관련된 다양한 기능들을 제공해주는 프로그램입니다.
최근 캐드 프로그램의 사용이 증가하면서 설계 관련 작업을 하시는 분들이 아니어도 dwg 파일을 마주칠 일이 많아졌는데요. 이 dwg 파일을 알씨 캐드뷰어 통해 쉽게 보실 수 있습니다.
🔸 알씨 캐드 뷰어 다운로드 🔸
알씨 캐드뷰어 다운로드 방법
알 캐드뷰어 다운로드를 받기 위해서는 알씨를 설치해주셔야 하는데요. 알씨 다운은 하단 알툴즈 바로가기에 접속해주세요.
🔸 알툴즈 사이트 바로가기 🔸
알툴즈 공식 홈페이지를 방문하시면 다양한 알시리즈 프로그램을 보실 수 있습니다. 무료로 이용할 수 있기 때문에 필요한 프로그램이 있으면 자유롭게 이용하시면 되는데요.
알씨 캐드뷰어는 별도의 프로그램이 있지는 않고 알씨를 설치해주시면 됩니다. '알씨'를 클릭해주시기 바랍니다. 클릭하시면 바로 설치 프로그램 다운로드가 진행되는데요. 설치까지 진행하기 위해 다운로드가 완료되면 설치프로그램을 실행해주시기 바랍니다.
설치 프로그램을 실행하시고 초기화하는데 잠시 기다리시면 위와 같은 화면이 보이시는데요. 알씨를 설치하기 위해서는 라이선스 계약서에 대해서 동의를 해주셔야 합니다. 소프트웨어 최종 사용자 사용권 계약서 내용을 자세하게 살펴보시고 동의하신다면 '동의'를 클릭해주시기 바랍니다. 동의하지 않으시면 설치가 불가능합니다.
라이선스 계약에 대해서 동의를 하셨다면 설치 화면이 보이실텐데요. 왼쪽 아래를 자세히 보시면 '알딜 추가 설치'가 있습니다. 알딜은 특가 상품을 추천해주는 프로그램인데요. 추가로 설치 하고 싶으시면 체크가 된 상태로 진행을 해주시고 설치를 원하지 않으시는 분들은 체크를 해제하시고 '설치 시작'을 클릭해주시기 바랍니다.
설치 시작을 클릭하시면 하단과 같은 화면이 보입니다. 아래쪽을 자세히 보시면 또 다른 선택사항들이 보이는데요. 제휴 프로그램과 zum 검색엔진 설정을 원하지 않으시면 아래쪽에 있는 체크 사항 체크를 해제하고 진행해주시기 바랍니다.
추가 설정에 대해 체크 여부를 선택해주시고 설치 폴더 위치나 설치 구성요소를 변경하고 싶으신 분들은 '사용자 지정'을 클릭해주시기 바랍니다. 별다른 설정이 필요없고 바로 설치를 원하시는 분은 '빠른 설치'를 클릭해주시기 바랍니다.
사용자 지정을 클릭하셨다면 설치 폴더와 구성요소를 선택하실 수 있습니다. 설치 폴더를 변경하고 싶다면 '찾아보기'를 통해서 다른 폴더를 지정을 해주시고 원하시는 구성요소들을 선택을 해주시기 바랍니다. 모두 선택을 하셨다면 '설치'를 클릭해주시기 바랍니다.
'설치'를 클릭하시면 정상적으로 설치가 진행되는데요. 컴퓨터 사양에 따라 다르겠지만 설치 속도가 보통 1분 내외로 굉장히 빠릅니다. 설치가 완료되면 다시 한번 더 다른 프로그램을 권장하는데요. 추가 설치를 원하시는 분들은 아래쪽에 체크가 된 상태로 진행을 해주시고 설치를 원하지 않으시면 체크를 해제하고 '확인'을 클릭해주시기 바랍니다.
알씨 설치가 완료되셨다면 알씨 프로그램 뿐만 아니라 알씨 꾸미기, 알씨 동영상 만들기, 알씨 캐드뷰어 4가지의 프로그램이 설치되어 있는데요. 지금은 알씨 캐드뷰어에 대해서 알아보고 있으므로 알씨 캐드뷰어를 실행해보도록 하겠습니다.
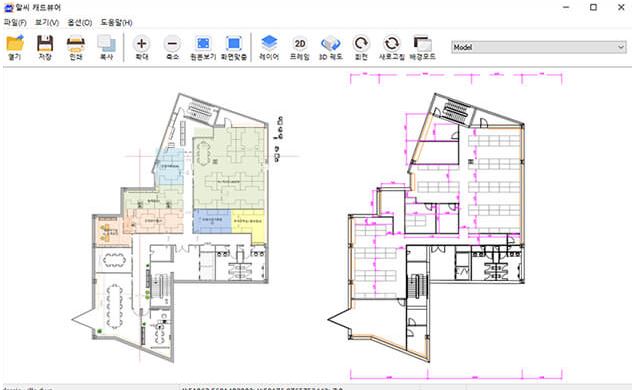
실행하시면 dwg 파일을 여실 수 있으실텐데요. 열기를 클릭하셔서 확인하고자 하는 캐드 파일을 선택하시거나 끌어서 놓아주시면 되는데요. 알씨를 설치하시면 dwg, dwf, dxf 등 캐드 파일은 자동으로 알씨 캐드뷰어로 연결이 되므로 바로 실행하셔도 됩니다.
혹시 자동으로 연결이 안되어 있으신 분들 중에 dwg 파일을 항상 알씨 캐드뷰어를 통해 보고 싶으신 분들은 추가 설정하시면 되는데요. 해당 파일의 오른쪽 클릭을 하셔서 '연결 프로그램'을 클릭해주시기 바랍니다. 그러면 사용할 앱을 선택하게 되는데 알씨를 선택하시고 '항상 이 앱을 사용하여 파일열기'를 체크하고 '확인'을 클릭하시면 됩니다.
알씨 캐드 뷰어 vs 오토캐드 뷰어 비교
알씨 캐드 뷰어는 dwg 뷰어 프로그램으로 AutoDesk 에서 제공하는 DWG TrueView 가 굉장히 유명한데요. 이 프로그램은 무겁고 다운로드도 오래걸려서 바로 캐드를 확인하기에는 불편합니다.
하지만 알씨 캐드뷰어는 다운로드가 굉장히 빠르고 가벼워서 많이 이용하는데요. DWG, DWF, DXF 등 다양한 2D/3D 캐드 이미지를 볼 수 있어서 편리합니다.
'정보' 카테고리의 다른 글
관절보궁 가격 파는 곳 및 효능 (0) | 2023.05.03 |
---|---|
디스코드 다운로드 PC버전 모바일 및 사용방법 (0) | 2023.05.02 |
ezPDF Editor 3.0 무료 다운로드 이지피디에프 에디터 3.0 (0) | 2023.04.28 |
곰녹음기 무료 다운로드 및 사용방법 Free Recorder (0) | 2023.04.28 |
곰믹스 다운로드 무료 동영상 편집 프로그램 GOM MIX (0) | 2023.04.28 |